Welcome to 23 Burdekin Vista, Hammond Park an expansive family home on a generous block, designed for those who refuse to compromise on space, comfort or functionality.
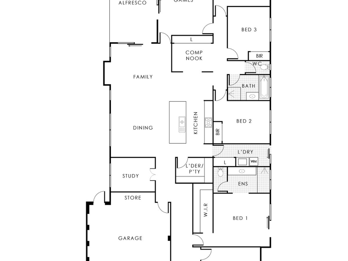
From the moment you step inside, the sense of openness is undeniable. The main living area features high 31c ceilings, enhancing the already impressive open-plan design and flooding the home with natural light. This central hub seamlessly connects the kitchen, dining and family areas - creating the perfect environment for entertaining or relaxed everyday living. The kitchen is built for both style and practicality, complete with Stone benchtops, large island breakfast bar and a huge pantry with abundant storage.
Multiple living zones make this home ideal for growing families. Privately positioned at the front of the home, the master suite is a true retreat - separate from the spacious gaming room and minor offering generous proportions, excellent storage and a well-appointed ensuite. The remaining three bedrooms are well-sized and serviced by a modern central bathroom.
Additional features include:
• Dedicated theatre room
• Games Room
• Separate study/home office
• Convenient computer nook
• Evaporative cooling
• Built in robes to all minor bedrooms
• Solar power
• Double remote garage
• Huge laundry with excellent storage
• Expansive open-plan living and dining
• Artificial lawn for easy outdoor maintenance
Location:
Positioned in the highly sought-after suburb of Hammond Park, this home places you right in the heart of family-friendly convenience. Families will appreciate being close to quality local schools including Hammond Park Primary School, Hammond Park Secondary College and Aubin Grove Primary School - all just minutes away.
Within easy reach of:
• Kwinana Freeway for easy access
• Aubin Grove Train Station
• Local parks and playgrounds
• The Quarie Bar & Brasserie and nearby cafés
• Cockburn Gateway Shopping City for retail, dining and everyday essentials
Whether it's school drop-offs, weekend sport, shopping trips or commuting to work, everything is right at your doorstep. This is a home that truly delivers on size, functionality and lifestyle in one of the southern corridor's most popular family suburbs.
All offers by 9.03.2026 (unless sold prior). Contact Nyenda Siapenga on 0466427120 or email [email protected]
Features
- Evaporative Cooling
- Remote Garage
- Courtyard
- Secure Parking
- Built-in Wardrobes
- Study













































