Jessica Pratarelli & Joel Chianese proudly present an iconic off market property like no other... Welcome to 1 Mary Street Watermans Bay.
Please register your interest with us directly for a private viewing of the home.
This is one of those opportunities that are few and far in between. Set on a prized 556sqm (approx.) corner block with an iconic West Coast Drive frontage, this is not just a location, it's THE location. This is your chance to make this iconic location your home. Elevated, ocean-facing, and steeped in local history as the original site of Mr Waterman's own home, this property is as special as they come.
Wake to the sound of the ocean, watch the sun melt into the horizon, and live a life where the beach is quite literally at your feet. With direct access to Watermans Bay Beach, a family playground and barbecue area right across the road, and Little Bay Café just a few doors away, this is effortless coastal living at its absolute best. Morning swims, barefoot coffees, long lunches and golden sunsets, this part of West Coast Drive is quite literally the place to be.
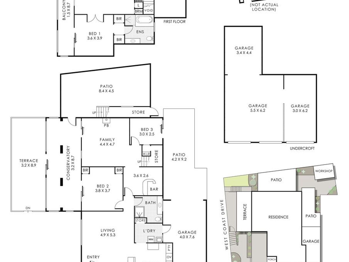
The existing three-bedroom, two-bathroom home offers immediate comfort and charm, but it's the options that make this opportunity truly extraordinary. Retain and renovate, enhance and extend, or take advantage of the DA-approved building plans and create a landmark coastal residence of your own. The corner position, sweeping ocean views stretching to Hillarys, and generous proportions give you a blank canvas that is becoming increasingly rare.
Practicality hasn't been overlooked either. With a substantial three-car garage off West Coast Drive, plus a separate single lock-up garage with driveway access from Mary Street, space and accessibility are well catered for.
Inside, the home centres around a tiled open-plan kitchen, dining and family area, where a sea-view picture window frames the Indian Ocean like a living artwork. Multiple living zones, generous bedrooms including an oversized master suite, and a selection of outdoor spaces, from covered patio entertaining to a breezy balcony and front courtyard, mean there's room to relax, entertain and take in the view from every angle.
This isn't just a home.
It's a once-in-a-lifetime chance to secure an iconic piece and create something truly enduring, right on the edge of the Indian Ocean.
For further information, to obtain a copy of DA approved plans or to view this property please contact:
Jessica Pratarelli
P: 0430 513 077 | E: [email protected]
Joel Chianese
P: 0415 449 114 | E: [email protected]
Disclaimer: This information is provided for general information purposes only and is based on information provided by the Seller and may be subject to change. No warranty or representation is made as to its accuracy and interested parties should place no reliance on it and should make their own independent enquiries.
Disclaimer: Images are for inspiration only and are intended to illustrate design potential.







































































